
아래와 같은 과정으로 진행합니다!
1. 내용증명서 작성 및 송부
2. 임차권등기명령 신청
3. 전월세 보증금에 대한 소송 진행(지급명령 신청 등)
이번 포스팅에서는 '임차권등기명령 신청방법'에 대하여 자세하게 알아보겠습니다.
임차권등기명령 소개
임차권등기명령은 임차인의 대항력과 우선변제권을 보장하기 위한 제도입니다.
쉽게 말하면, 해당 부동산에서 다른 곳으로 이사를 해도 집주인에게 '다른사람보다 먼저 보증금을 받을 수 있는 권리'를 말합니다.
그러므로, 보증금을 아직 반환받지 못했지만 꼭 이사를 가야하는 경우에 임차권등기명령을 활용할 수 있습니다.
임차권등기명령 신청 방법
① 등록면허세 납부
② 등기수수료 납부
③ 등기사항전부증명서 발급
④ 건축물현황도 발급
⑤ 임대차계약서 구비
⑥ 법원 전자소송 사이트를 통하여 신청
위 서류들을 구비하고, 법원 전자소송 사이트를 통해 임차인의 단독으로 임차권등기명령 신청이 가능합니다.
[전세사기 예방] 전월세 보증금 반환 돌려받기②-1 : 임차권등기명령 신청/ 등록면허세 납부
[전세사기 예방] 전월세 보증금 반환 돌려받기②-1 : 임차권등기명령 신청/ 등록면허세 납부
이번 글에서는 임차권등기명령 신청방법에 대하여 자세하게 알아보겠습니다.우선 저번 글에서 알려드린 것처럼 진행 과정은 다음과 같습니다. 1. 내용증명서 작성 및 송부2. 임차권등기명령
openlee.co.kr
[전세사기 예방] 전월세 보증금 반환 돌려받기②-2 : 임차권등기명령 신청/ 등기촉탁수수료 납부
[전세사기 예방] 전월세 보증금 반환 돌려받기②-2 : 임차권등기명령 신청/ 등기촉탁수수료 납부
전세사기로부터 전월세 보증금을 돌려받는 방법에 대하여 알아보겠습니다. 전세사기로부터 전월세 보증금을 돌려받는 과정은 다음과 같습니다. 1. 내용증명서 작성 및 송부 2. 임차권등기명령
openlee.co.kr
[전세사기 예방] 전월세 보증금 반환 돌려받기②-3 : 임차권등기명령 신청/ 등기사항전부증명서(등기부등본) 발급
[전세사기 예방] 전월세 보증금 반환 돌려받기②-3 : 임차권등기명령 신청/ 등기사항전부증명서(
전세사기로부터 전월세 보증금을 돌려받는 방법에 대하여 알아보겠습니다. 전세사기로부터 전월세 보증금을 돌려받는 과정은 다음과 같습니다. 1. 내용증명서 작성 및 송부 2. 임차권등기명령
openlee.co.kr
[전세사기 예방] 전월세 보증금 반환 돌려받기②-5 : 임차권등기명령 신청/ 법원 나홀로 전자소송
[전세사기 예방] 전월세 보증금 반환 돌려받기②-5 : 임차권등기명령 신청/ 법원 나홀로 전자소송
전세사기로부터 전월세 보증금을 돌려받는 방법에 대하여 알아보겠습니다. 전세사기로부터 전월세 보증금을 돌려받는 과정은 다음과 같습니다. 1. 내용증명서 작성 및 송부 2. 임차권등기명령
openlee.co.kr
준비물
1) 신분증 사본 파일
2) 부동산 임대차계약서 파일
건축물현황도 발급
① 건축행정시스템 세움터 홈페이지(https://www.eais.go.kr/)에 접속합니다.
우측에 '건축물대장'이라고 나와있는 탭을 클릭합니다.
(원래는 아래 화면처럼 상단에 '민원서비스'로 들어가면 되지만,
가끔 위 상단 메뉴바가 활성화 되어 있지 않습니다.)
'건축물현황도 발급' 탭을 클릭합니다.

② 로그인 유형을 선택하는 화면이 나옵니다.
'비회원 발급'을 선택합니다.
(회원 발급을 선택하셔도 무관합니다. 대신 회원가입 절차는 감수해야 할듯..)

그리고 이름 및 주민등록번호 등을 기재합니다.

③ 발급유형을 선택합니다.
우리는 임차인이기 때문에, 가운데 '본인소유가 아닌 건축물'을 선택합니다.

④ 상단 파란박스에 건축물소재지를 입력합니다.

그리고 조회결과가 나오면, 본인이 임대차계약에 해당하는 부분을 선택하고 '신청할 민원 담기'를 클릭합니다.

오른쪽 상단에 '신청할 민원'에 있는 평면도를 확인하고, '건축물현황도 발급 신청'을 클릭합니다.

⑤ 우리는 열람이 아닌 발급을 원하므로, '건축물 현황도를 발급합니다.'를 선택합니다.
그리고 신청인 자격에는 '해당 건축물의 임차인(賃借人)이 신청하는 경우'를 선택합니다.
그러면 바로 파일을 첨부할 수 있도록 '+추가' 버튼이 생기는데,
여기에 미리 준비했던 신분증 사본과 임대차계약서를 첨부합니다.

⑥ 건축물대장 신청내역을 확인합니다.
담당공무원이 확인후 처리가 완료되면 발급이 가능합니다.

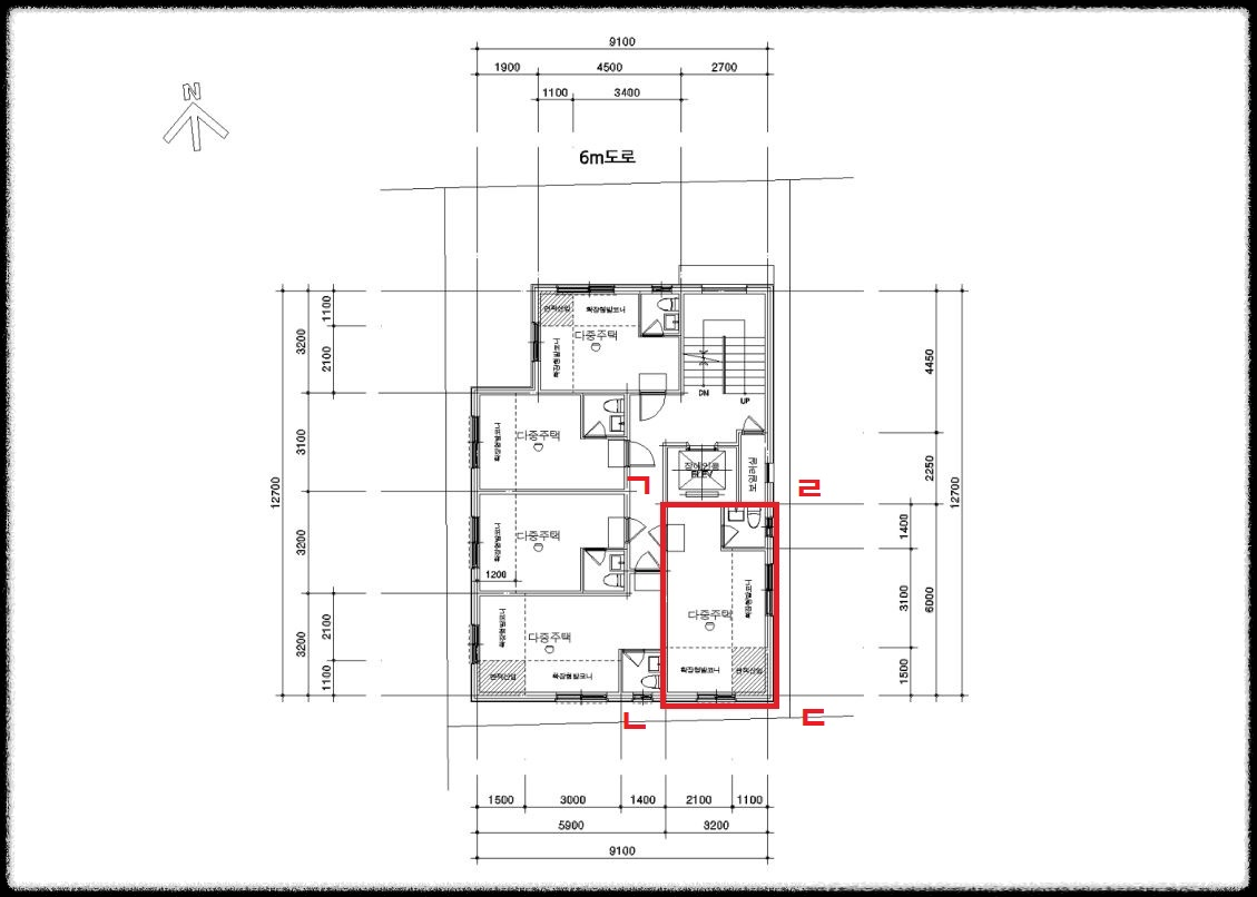
⑦ 마지막단계입니다. 발급받은 건축물현황도에서 임대차계약한 해당 부분을 표시하여 줍니다.★
임차권등기명령 신청시 해당 부분을 특정하여야 하기 때문에 꼭 필요합니다.
간단하게 그림판을 통해서 작업하시면 됩니다.
아래 그림과 같이 ㄱㄴㄷㄹㄱ순으로 묶어서 표시합니다.
텍스트 삽입하기를 통해서 만들어 주세요.

임차권등기명령 신청을 위한 준비는 끝났습니다.
다음에는 갖춰진 서류들로, 전세사기 예방을 위한 셀프 임차권등기명령 신청을 하는 방법에 대하여 알아보겠습니다.
'나홀로 소송 > 구 전자소송' 카테고리의 다른 글
| [나홀로 전자소송] 집행문 발급 방법 완벽 가이드 (0) | 2024.11.28 |
|---|---|
| [전세사기 예방] 전월세 보증금 반환 돌려받기③-2 : 전월세 보증금에 대한 민사 소송 진행/ 본안소송(지급명령이의) (0) | 2024.11.24 |
| [전세사기 예방] 전월세 보증금 반환 돌려받기③-1 : 전월세 보증금에 대한 민사 소송 진행/ 지급명령신청방법 (3) | 2024.07.10 |
| [전세사기 예방] 전월세 보증금 반환 돌려받기②-5 : 임차권등기명령 신청/ 법원 나홀로 전자소송 (0) | 2024.07.08 |
| [전세사기 예방] 전월세 보증금 반환 돌려받기②-3 : 임차권등기명령 신청/ 등기사항전부증명서(등기부등본) 발급 (1) | 2024.07.05 |
| [전세사기 예방] 전월세 보증금 반환 돌려받기②-2 : 임차권등기명령 신청/ 등기촉탁수수료 납부 (0) | 2024.07.04 |
| [전세사기 예방] 전월세 보증금 반환 돌려받기②-1 : 임차권등기명령 신청/ 등록면허세 납부 (0) | 2024.07.03 |
| [전세사기 예방] 전월세 보증금 반환 돌려받기① : 내용증명서 작성 및 송부 보내는 방법(양식 다운로드 포함) (0) | 2024.07.02 |
